Warenkorb

Es gibt keine Treffer zu Ihrer Suche

350100

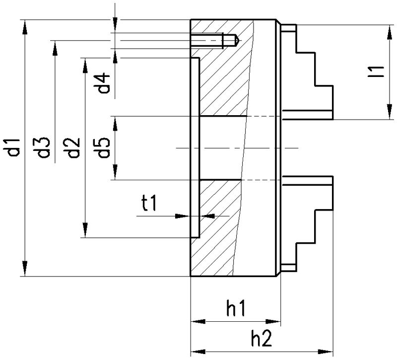
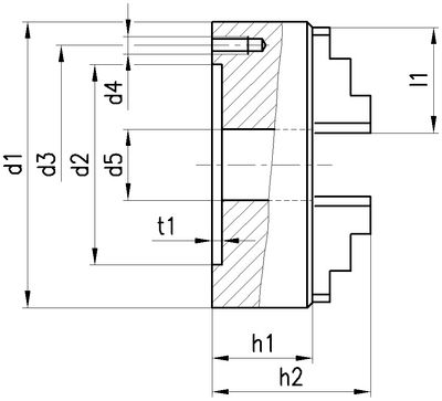
Planspiralfutter

FN Guss
DIN 6350, zylindrische Zentrieraufnahme
Mit einzeln verstellbaren und zentrisch spannenden Backen (System Westcott).
Ausführung
Futterkörper aus Spezialguss, Planspirale und Spannbacken sind im Einsatz gehärtet. Flanken der Spirale und Gewindeflanken der Spannbacken beidseitig geschliffen. Ritzel und Verstellspindel gehärtet und geschliffen.
Anwendung
Zum Spannen von unregelmässig geformten Werkstücken. Die Grundbacken können gemeinsam mit den Umkehrbacken zentrisch verstellt werden. Ausserdem lassen sich die Umkehrbacken mit Hilfe der Verstellspindel unabhängig zueinander verstellen.

Normalzubehör
1 Satz gehärtete Grundbacken
1 Satz gehärtete Umkehrbacken
1 Satz Schrauben
1 Spannschlüssel, 1 Verstellschlüssel

Wichtig: mit der Verstellspindel nur die Backen einstellen; das Spannen der Werkstücke darf nur über das Ritzel erfolgen.
Ersatzbacken und weitere Grössen auf Anfrage.
3 gefundene Artikel
FILTER
Ø [mm]
Ø [mm]

Filter löschen
Artikel Nr
Bezeichnung
Ø [mm]
125 - 200
d1 [mm]
125 - 200
d2 [mm]
95 - 160
d3 [mm]
108 - 176
d4 [mm]
3 x M8 - 3 x M10
d5 [mm]
32 - 55
h1 [mm]
76 - 96
h2 [mm]
100 - 127
l1 [mm]
56 - 80
t1 [mm]
4 - 5.5
Gewicht [kg]
6 - 18.5
Schlüsselweite [mm]
9 - 11
Max. Drehzahl [min-1]
2800 - 1700
Netto CHF
zzgl. Versand
Staffelung
Netto CHF
zzgl. Versand
Menge
3 gefundene Artikel
Loading...
zzgl.
pro